アパート
福岡県飯塚市川津
- 画像
- パノラマ
- 動画
- マップ
物件概要
| 物件種別 | アパート | ||
|---|---|---|---|
| 物件名 | 福岡県飯塚市川津 | ||
| 所在地 | 福岡県飯塚市川津 | ||
| 交通機関 |
新飯塚駅【バス】13分 飯塚農協 停歩5分 新飯塚駅【バス】13分 飯塚農協 停歩5分 |
||
| 賃料 | 4.8万円 | 管理費/共益費 | 4,500円 |
| 敷金/保証金 | 無 | 礼金 | 1ヶ月 |
| 敷引/償却 | - | 更新区分 | 有:更新料16,500円 |
| 保険料 | - | 保証人 | 指定なし |
| 保証会社 | - | ||
| 築年月 | 2005年10月(築20年) | 総戸数 | 12戸 |
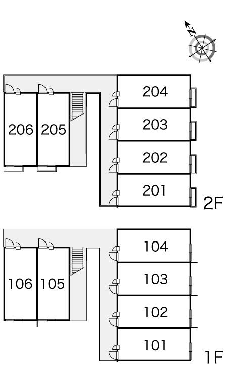
| 所在階/階建 | 2階/2階建 | 構造 | 木造 |
| 間取り | 1K | 間取り詳細 | |
| 専有面積 | 23.18㎡ | 契約形態 | 普通契約/2年 |
| 入居可能日 | 2026年4月下旬 | 駐車場 | 有:5,500円(税込) |
| 取引態様 | 先物 | ||
| 備考 | |||
- 情報登録日:2026/03/04
- 情報更新日:2026/03/27
- 次回更新予定日:2026/04/10
設備・特徴
| バス・トイレ | バス・トイレ:別室、浴室乾燥機、温水洗浄便座、給湯、室内洗濯機置き場 | ||
|---|---|---|---|
| キッチン | 電気コンロ | ||
| 設備・サービス | 宅配ボックス、駐輪場、TVモニター付きインターホン、家具家電付き、エアコン、その他インターネット | ||
| その他・特徴 | IT重説 対応物件、オンライン相談可、角部屋 | ||
お問い合わせ
アシスト不動産
所在地/福岡県飯塚市有井354-21
営業時間/10:00~18:00 定休日/水曜・日曜
お問い合わせ番号:11151082
0948-82-5500


